충청북도 청주시 흥덕구 송절동에 위치한 청주테크노폴리스 하트리움 더 메트로(S4블록)는 초고층 주상복합 아파트로, 지하 3층부터 지상 49층까지의 초고층 설계를 자랑하며, 총 4개 동으로 이루어진 761세대의 대단지입니다.

이 단지는 단순한 주거 공간을 넘어, 청주의 새로운 랜드마크로 자리 잡을 예정입니다. 또한, 뛰어난 입지와 현대적 설계, 그리고 다양하고 실용적인 주거 편의 시설로 실수요자와 투자자 모두에게 높은 관심을 받고 있습니다.
단지 개요 및 구성
- 위치: 충청북도 청주시 흥덕구 송절동 산 12-11번지 일원.
- 규모: 지하 3층에서 지상 최고 49층까지, 총 4개 동.
- 세대 구성:
- 아파트: 599세대.
- 오피스텔: 162실.
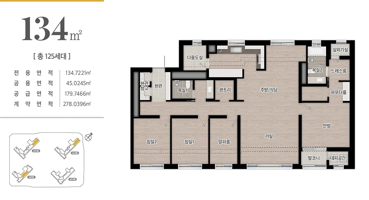
- 전용면적: 84㎡에서 220㎡까지 다양한 평형대로 구성.
단지 배치 및 세대 안내

단지 배치
- 각 동은 남향 위주로 배치되어 최적의 일조량과 채광을 확보하였으며, 동간 거리는 평균 35m 이상으로 설계되어 입주민의 프라이버시를 철저히 보호합니다. 또한, 넓은 동간 거리는 소음 감소 효과를 제공하며, 주민들이 이용할 수 있는 더 넓은 공용 공간을 확보하여 여유롭고 쾌적한 환경을 조성합니다. 이러한 설계는 바람길을 형성해 단지 내 공기 순환을 개선하는 효과도 제공합니다.
- 중심부에는 커뮤니티 시설과 조경 공간이 배치되어 단지 내 이동이 편리하고 쾌적한 환경을 제공합니다.

세대 안내
- 84㎡: 실수요자들이 선호하는 중형 평형대로, 공간 활용성을 극대화한 설계가 특징입니다.
- 110㎡ 이상: 대형 평형대로, 가족 단위 거주에 적합하며, 넓은 거실과 고급 마감재, 별도의 드레스룸 공간을 제공합니다.
- 220㎡: 최고급 펜트하우스 세대로, 스카이라운지 전망과 함께 고급스러운 생활을 제공합니다.







입지 및 생활 환경

교통:
- 북청주역(예정)과 서청주 IC 인근에 위치해 교통 접근성이 뛰어납니다.
- 주요 간선도로와의 연결성이 우수하여 청주 도심 및 인근 지역으로 이동이 용이합니다.
주변 산업단지:
- SK하이닉스, LG생활건강 등 주요 기업이 입주한 청주산업단지와 인접하여 직주근접 생활이 가능합니다.
교육 환경:
- 단지 내 초등학교 예정 부지가 있어 학부모들에게 매력적입니다. 초등학교는 단지에서 도보 5분 거리에 위치하며, 2026년 개교를 목표로 설계와 인허가 절차가 진행 중입니다. 이 학교는 친환경 건축 기술을 도입하여 학생들에게 쾌적한 학습 환경을 제공하며, 최신 ICT 기술을 활용한 스마트 교실과 체육 시설 등 다양한 편의시설이 갖춰질 예정입니다.
편의시설:
- 청주 최대 쇼핑몰인 현대백화점과 롯데아울렛이 각각 차량으로 약 10분 거리에 위치하고, 청주성모병원은 차량으로 15분, 청주의료원은 약 20분 거리에 있어 편리한 생활이 가능합니다.
설계 및 특징
초고층 설계: 지상 49층의 초고층 구조로 청주의 스카이라인을 새롭게 정의합니다.
다양한 평형 구성:
- 84㎡에서 220㎡까지 다양한 평형대를 제공하여, 신혼부부에게는 실용적인 84㎡형이, 공간 효율성을 극대화한 주방과 수납 설계를 자랑합니다. 중대형 평형인 110㎡ 이상은 대가족에게 적합하며, 넓은 거실과 고급 마감재, 별도의 드레스룸 공간을 제공합니다. 220㎡ 펜트하우스는 최고급 라이프스타일을 추구하는 고소득층을 겨냥하여 스카이라운지와 개별 테라스 등의 프리미엄 시설이 포함되어 있습니다. 이로써 실수요자와 투자자 모두를 만족시키는 구성이 돋보입니다.
친환경 설계:
- 단지 내 조경 시설과 에너지 효율을 높이는 친환경 기술 도입. 예를 들어, 태양광 패널과 고효율 LED 조명을 설치하여 에너지 소비를 절감하고, 친환경 건축 자재를 활용해 환경 영향을 최소화하고 있습니다. 이러한 기술은 에너지 비용 절감으로 입주민들의 생활비 부담을 줄이고, 실내 공기질 개선 및 소음 차단 효과를 통해 건강에도 긍정적인 영향을 미칩니다.
고급 커뮤니티 시설:
- 피트니스 센터, 독서실, 게스트하우스 등 입주민 전용 시설 제공.
분양 정보 및 일정

분양 일정:
- 특별공급 청약: 2024년 12월 30일.
- 일반공급 1순위 청약: 2025년 1월 2일.
- 일반공급 2순위 청약: 2025년 1월 3일.
- 당첨자 발표: 2025년 1월 8일.
- 계약일: 2025년 1월 19일 ~ 2025년 1월 21일.
분양가:
- 전용 84㎡형: 평균 약 4억 5,500만 원.
- 3.3㎡당 평균 분양가: 약 1,289만 원.
청약 유의사항:
- 분양가상한제 적용: 주변 시세 대비 합리적인 가격으로 공급.
- 계약금: 공급금액의 15%.
미래 가치와 전망
- 청주의 랜드마크: 지상 49층의 초고층 단지는 청주에서 가장 높은 건물로, 상징적인 주거지로 자리 잡을 전망입니다.
- 우수한 직주근접: 청주산업단지와의 인접성으로 출퇴근 시간 단축 및 높은 임대 수요가 예상됩니다.
- 합리적 분양가: 분양가상한제가 적용되어 주변 단지 대비 경쟁력 있는 가격을 자랑합니다.
마무리
청주테크노폴리스 하트리움 더 메트로(S4블록)는 청주의 스카이라인을 새롭게 정의하는 초고층 단지로, 우수한 입지, 합리적인 분양가, 다양한 생활 인프라를 갖춘 주거 단지입니다. 이 단지는 실수요자와 투자자 모두에게 매력적인 선택이 될 것입니다.

청약을 계획하고 있다면, 분양 일정과 조건을 꼼꼼히 확인하여 신청하시기 바랍니다. 청주에서 새로운 삶의 중심을 설계할 기회를 놓치지 마세요!
'부동산' 카테고리의 다른 글
| 천안 두정역 양우내안애 퍼스트로의 매력 (3) | 2025.01.01 |
|---|---|
| 탕정 푸르지오 센터파크: 아산의 미래형 주거단지 (0) | 2024.12.31 |
| 의왕 월암지구 대방 디에트르 레이크파크: 자연과 혁신의 주거지 (1) | 2024.12.31 |
| 프리미엄 주거 단지, 대구 범어자이르네 전격 분석 (0) | 2024.12.31 |
| 망우역 펜타역세권 아파트, 더샵 퍼스트월드의 매력은? (2) | 2024.12.20 |